Permitted Development Approval

  • July 2017
  • Kieron Peaty

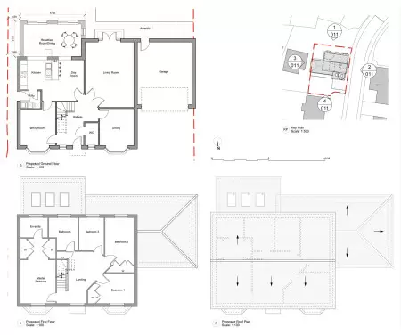
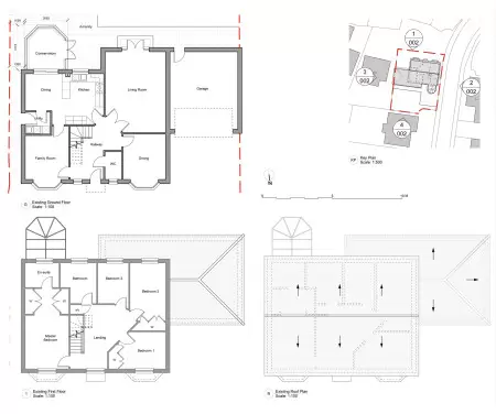
We've obtained Permitted Development approval for a client in Chelmsford. The project includes the demolition of a rear conservatory and the erection of a new 3m rear extension.

The client approached us with an instruction to make more of the ground floor living accommodation. With the conservatory used merely as a through route to the rear garden, we saw an opportunity to provide real heart to this family home by creating a new kitchen, dining and family room, benefiting from increased natural light, owed to the south facing rear garden.

We'd love to hear from you.

Book your free consultation to tell us more about your project and to find out how we can help.