Refurbishment & Reconfiguration

  • October 2017
  • Kieron Peaty

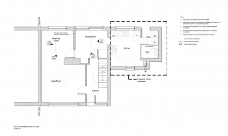
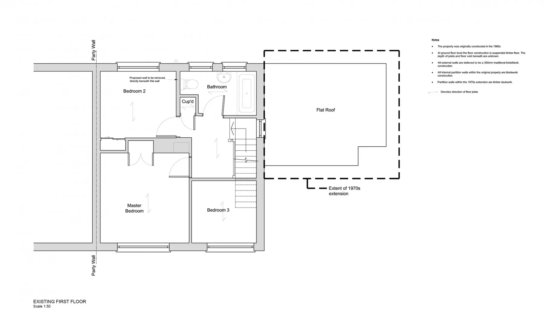
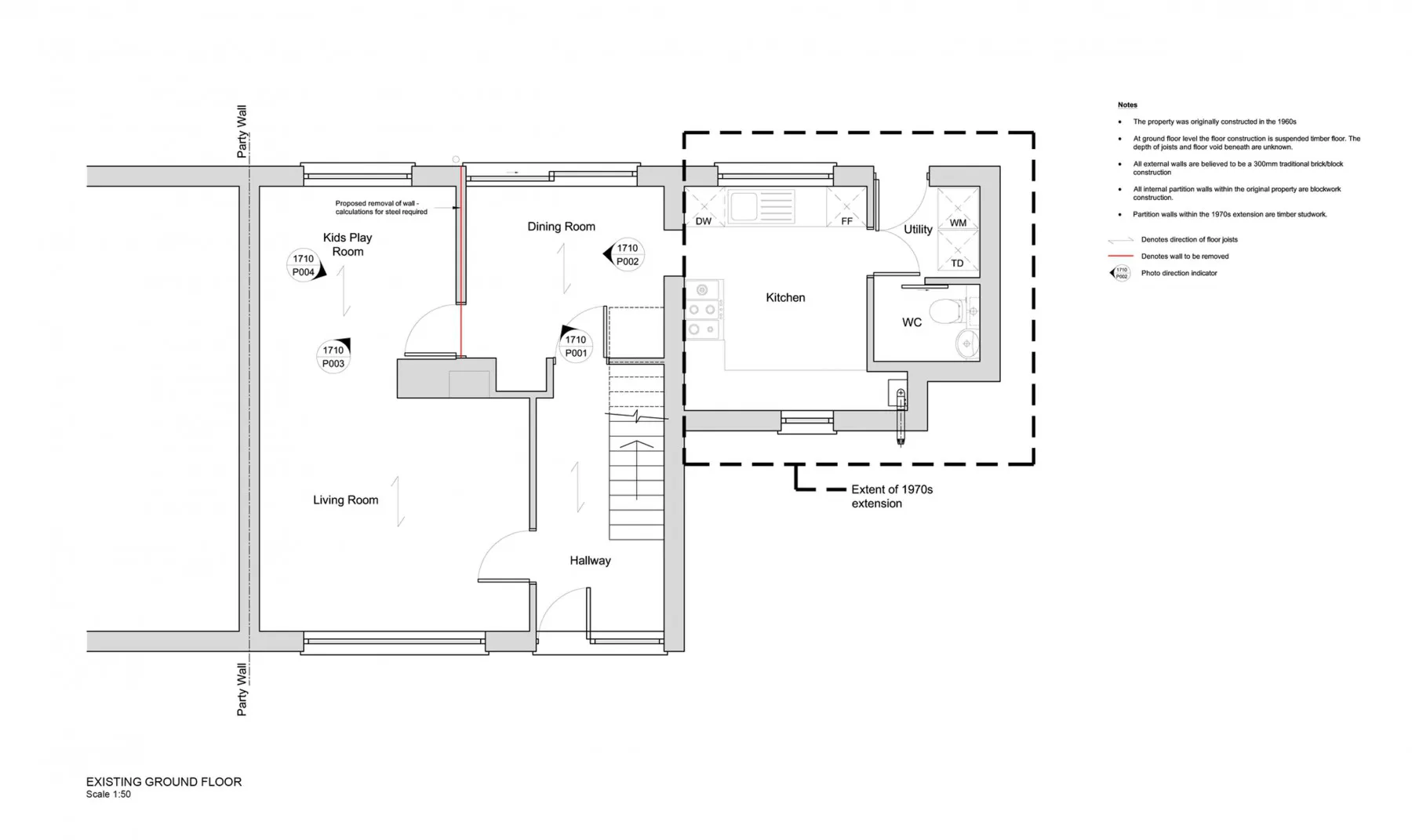
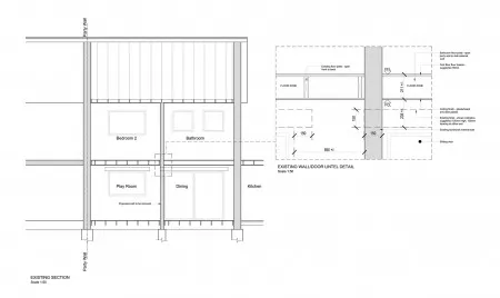
We're currently working on the refurbishment and reconfiguration of a semi-detached property in Billericay. Initially the scope of works is straight forward, involving the removal of an internal load-bearing wall to create a truly open-plan ground floor level.

After producing existing drawings of the property, we procured the services of a Structural Engineer on the client's behalf. We conveyed design intent to the SE and were able to devise an agreeable strategy prior to his producing calculations for a new steel beam. The proposed works are now being tendered so come back soon to see how things progress! 

S40

We'd love to hear from you.

Book your free consultation to tell us more about your project and to find out how we can help.